Type
ResidentialMahaRera
P52100020686Type
2 & 3BHKConfigure
577 - 980 sq.ftAbout Project: Godrej Nurture
Godrej Properties have come up with a new project named Godrej Nurture at Mamurdi location near Ravet in Pune. Godrej Nurture brings up homes with a unique ambiance where each family member can enjoy to the fullest. The project has got all the modern amenities that are required for making the lifestyle more comfortable. It has good connectivity with the Mumbai Pune Expressway. It is surrounded by a lavish view that will cherish your mind. The project has a configuration of 2 & 3BHK flats in the Mamurdi location.
About Builder: Godrej Properties
Godrej Properties carries the Godrej-Group philosophy of innovation, and excellence and has brought this to the real estate industry in India. With presence in multiple cities in India, each project developed by Godrej Properties reflects a 123–year legacy of excellence and trust with a commitment to highest level of design and technology. Godrej Properties has received multiple awards, over 200 awards including ‘The Most Trusted Real Estate Brand’ and much more.In Pune,.Godrej Properties has ongoing projects such as Godrej Infinity, Godrej Hillside, Godrej Rejuve, Godrej Elements and more.
Project Configrations
2 & 3BHK
Price: 45 - 88.03 Lakhs
MahaRera: P52100020686
2BHK
Price: 45 Lakhs Onwards
MahaRera:
3BHK
Price: 88 Lakhs Onwards
MahaRera:
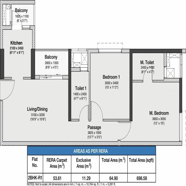
Floor Plans
Amenities
-
Garden & Park
-
Car Parking
-
Club House
-
Power Backup
-
Kids Play Area
-
Swimming Pool
-
24 Hour Security
-
CCTV Camera
-
Yoga
Residential
